電話:0755-28710017
傳真:
聯系人:13798219801(盛小姐)
網址:www.eimengdk.com
郵箱:jz@jiazhousz.com
地址:深圳市龍崗區南灣街道布瀾路31號李朗軟件園A3棟4F
作者: 深圳市加洲建設集團有限公司發表時間:2025-05-15 15:00:18瀏覽量:357【小中大】
一、走進辦公室動線的神秘世界
在辦公室裝修的龐大工程中,有一個關鍵要素常常被人忽視,卻又深刻影響著我們每天的辦公體驗,它就是——動線。簡單來說,動線就是人在室內移動的軌跡,將這些移動的點連接起來,便構成了我們在辦公室內的行動路線。別小看這條無形的“路”,它可是辦公效率與員工舒適度的幕后大功臣。
想象一下,你在一個布局混亂的辦公室里工作,每次去茶水間接水都要繞一大圈,經過好幾個辦公區域,不僅浪費時間,還可能被他人的工作狀態干擾。又或者,會議室離辦公區太遠,每次開會都要匆忙趕路,到了會議室還氣喘吁吁,難以迅速進入會議狀態。這些場景是不是很熟悉?這其實就是動線設計不合理在作祟。合理的辦公室動線設計,就像是給辦公空間安裝了一套高效的交通系統,能讓員工、訪客在各個區域之間順暢通行,減少時間浪費和行走的疲憊感,同時也能提高空間的利用率,提升整個辦公環境的秩序感。
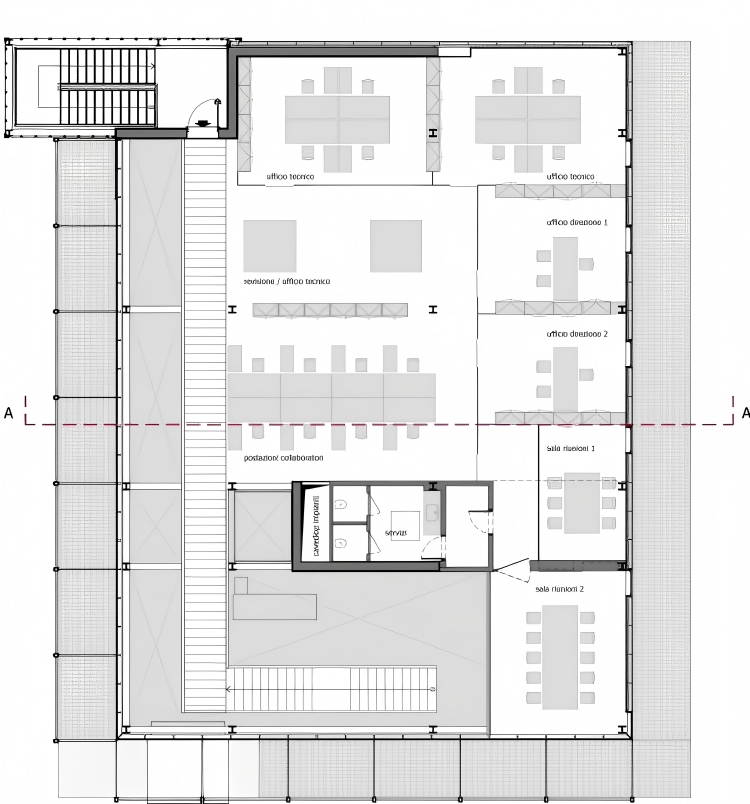
二、辦公空間分區與動線規劃
(一)前臺接待區
前臺接待區,作為辦公空間給人的第一印象,其位置的選擇至關重要,它通常被安置在靠近入口的顯眼之處。這樣的布局就像是在公司的大門處設置了一個友好的“引導員”,方便接待來訪客人,讓訪客一進入辦公區域就能迅速找到對接的地方,感受到公司的專業與熱情。比如一些大型企業的前臺,往往占據著寬敞的空間,與入口直接相連,開闊的視野和便捷的位置,讓訪客無需過多尋找,便能輕松抵達。
在空間充足的情況下,前臺還可以根據不同的人員類型,設置不同的功能通道,如面試者通道、訪客通道、員工通道和其他人員通道等。這樣細致的劃分,能夠有效地減少不同人員流線之間的交叉干擾,確保辦公區域的秩序井然。以面試者通道為例,單獨設置的通道可以讓面試者在相對獨立的空間內完成面試流程,避免他們在公司內部走動時對正常辦公秩序產生影響,同時也能為面試者提供一定的隱私保護,讓他們能更放松地參與面試。
(二)公共辦公區
開放辦公區作為現代辦公的主流布局,有著獨特的布局要點。每個工位的面積一般設置在長1.4米x寬1.4米左右,再加上大約1米寬的走道,基本需求在3平米左右,同時還會預留一定的活動空間,最終每個工位大約控制在4平方。這樣的面積設置既能保證員工擁有相對獨立的工作空間,放置必要的辦公設備,又不會讓員工感到過于局促。預留活動空間也是大有講究,它可以讓員工在長時間工作后起身活動時更加自如,避免因空間狹窄而碰撞到周圍的同事或物品。從整體動線的角度來看,開放辦公區的布局需要考慮員工在辦公區域內的行走路線,確保員工在前往打印機、茶水間等公共區域時,行走路徑順暢,不會造成擁堵。
(三)獨立辦公室
獨立辦公室,尤其是董事長、總經理等高層領導的辦公室,通常會設置在公司較為隱蔽的位置,如走廊盡頭或者最角落處。這是因為這些辦公室涉及到公司的核心決策和重要機密,隱蔽的位置可以減少外界的干擾,保護公司的隱私和機密信息不被輕易泄露。比如,許多公司的財務部門辦公室也會安排在隱蔽區域,因為財務數據關乎公司的經濟命脈,需要嚴格保密。盡管位置隱蔽,但獨立辦公室在動線上仍要與其他區域緊密相連,方便領導與員工進行溝通交流,及時了解公司的運營情況。可以通過合理規劃走廊的走向和連接方式,讓獨立辦公室與公共辦公區、會議室等主要區域之間形成便捷的通道,確保領導在需要時能夠迅速到達各個區域,高效地開展工作。
(四)會議室
會議室的規模和數量是根據公司的實際需求、人員數量以及組織結構來確定的。一般來說,一個公司會設置不同規模的會議室,以滿足各種會議的需求,如五人、十人、二十人的會議室等。從使用頻率來看,如果公司的會議活動頻繁,那么就需要配備更多數量和不同規格的會議室,以避免會議時間沖突。在動線上,會議室通常會靠近需要頻繁使用它的部門或區域,方便人員往來。例如,銷售部門經常需要與客戶進行溝通洽談,那么會議室就可以設置在靠近銷售辦公區的位置,這樣銷售人員在組織會議時,能夠快速地將客戶引導至會議室,節省時間,提高工作效率。
三、內部與外部動線設計大揭秘
(一)內部動線
內部員工動線的簡潔流暢,是辦公效率的有力保障。員工在辦公室內的日常活動,如前往會議室開會、去茶水間休息、到資料室取文件等,都依賴于這條無形的“路線”。如果內部動線設置得過于復雜,彎彎繞繞,就會像在迷宮中行走一樣,極大地影響員工之間工作和交流的效率。
以一家廣告公司為例,其辦公區域的布局較為混亂,設計師的工位與創意討論區之間隔著多個其他部門的辦公區域,而且通道狹窄且曲折。每當有創意討論會議時,設計師們需要花費大量時間穿過擁擠的過道,繞過擺放不合理的辦公家具才能到達討論區。這不僅浪費了寶貴的工作時間,還讓員工在行走過程中感到疲憊和煩躁,影響了他們的工作情緒和創造力。在這種復雜的動線下,員工之間的交流也變得困難重重。例如,當設計師需要與文案策劃人員溝通項目細節時,由于行走路線不方便,他們往往會選擇通過即時通訊工具交流,而這種非面對面的交流方式,很難達到良好的溝通效果,容易導致信息傳遞不準確,影響項目的推進速度和質量。
(二)外部動線
外來人員動線,主要涵蓋經過接待區、會客區、展示區以及會議室等區域的路線,這些外部動線及相關區域,通常應布置在靠近出入口的位置。這是因為將外來人員的活動范圍集中在靠近入口處,可以盡可能避免外部因素對內部工作造成干擾。例如,一家科技公司將訪客動線設置在靠近公司入口的一側,訪客在前臺登記后,通過專門的通道直接前往會客室或會議室,這條路線與員工的辦公區域完全分開,員工在工作時幾乎不會受到訪客的影響,能夠專注于自己的工作。
從公司機密保護的角度來看,這樣的布局至關重要。如果外來人員動線隨意穿插在公司內部,他們就有可能接觸到公司的核心辦公區域,增加公司機密外泄的風險。比如,財務數據、未發布的產品研發資料等都屬于公司機密,一旦被別有用心的訪客獲取,將會給公司帶來巨大的損失。合理的外部動線設計,就像是在公司內部與外部之間筑起了一道安全防線,既能保證訪客的正常活動,又能有效保護公司的機密信息不被泄露,維護公司的利益和聲譽。
四、動線設計的實用原則
(一)開放與圍合
開放性的空間設計,就像一座四通八達的橋梁,能讓員工之間的交流與協作變得更加順暢。在這樣的空間里,員工們可以隨時分享想法、交流經驗,打破部門之間的隔閡,促進團隊的凝聚力和創新力。比如一些互聯網公司,采用開放式辦公區域,員工們圍坐在一起,方便隨時討論項目,遇到問題也能迅速得到同事的幫助,極大地提高了工作效率。然而,開放性空間也并非完美無缺,它就像一把雙刃劍,在帶來便利的同時,也會帶來噪音和干擾等問題。過于開放的環境,容易讓員工受到周圍同事說話、走動等行為的影響,難以集中精力進行深度思考和專注工作。
圍合性的空間設計則恰恰相反,它為員工提供了一個相對安靜和私密的工作環境。獨立辦公室、封閉式會議室等,這些圍合性空間就像一個個獨立的小世界,能夠有效地隔絕外界的干擾,讓員工在里面安心工作。對于需要高度集中注意力的工作,如財務核算、創意寫作等,圍合性空間能讓員工更好地發揮自己的能力。但圍合性空間也可能會讓員工產生壓抑和孤獨感,限制了信息的流通和交流,使員工與團隊的聯系變得相對薄弱。
在實際的辦公室動線設計中,我們需要根據公司的文化、員工的需求和工作類型,靈活運用開放性和圍合性的設計元素。可以將需要頻繁溝通協作的部門安排在開放性空間區域,讓員工能夠便捷地交流;而對于需要保密或專注度高的工作區域,則采用圍合性設計,保障工作的順利進行。比如,將市場部、銷售部等需要大量溝通協作的部門設置在開放式辦公區,促進員工之間的交流與合作;將研發部、法務部等對保密性和專注度要求較高的部門安排在獨立辦公室或封閉式辦公區域,為他們提供安靜、私密的工作環境。
(二)動態與靜態
在辦公空間中,不同區域有著不同的流動性和活躍度,這就需要我們將動態區和靜態區合理連接,避免相互干擾。動態區,如會議室、前臺接待區、茶水間等,這些區域人員流動頻繁,活動較為嘈雜。會議室里,常常會進行激烈的討論和頭腦風暴;前臺接待區,訪客不斷進出;茶水間則是員工們休息交流的場所,充滿了歡聲笑語。而靜態區,主要是員工的工作區,需要一個安靜、穩定的環境,以便員工能夠專注于工作。
如果動態區和靜態區的連接不合理,就會出現各種問題。例如,將會議室設置在辦公區的中間位置,會議期間的討論聲和人員走動聲,很容易打擾到周圍辦公的員工,讓他們無法集中精力工作。再比如,茶水間離辦公區太近,員工在休息時的聊天聲也會對工作產生干擾。因此,在動線設計時,要將動態區和靜態區適當分開,通過合理規劃走廊、通道等過渡空間,讓人員在不同區域之間的流動更加順暢,減少干擾。可以將動態區設置在靠近入口或公共區域的位置,靜態區則安排在相對安靜的內部區域。比如,將前臺接待區設置在靠近公司入口處,方便接待訪客;將會議室和茶水間設置在離辦公區有一定距離的地方,通過走廊進行連接,這樣既保證了員工在需要使用這些區域時能夠方便到達,又不會對辦公區的安靜環境造成太大影響。
(三)穿插與相鄰
在辦公空間中,有些區域之間的關系密切,需要相鄰布局,以方便人員的往來。比如,前臺接待區和會客室,這兩個區域是緊密相連的。前臺接待區是公司與外界溝通的第一站,當有訪客到來時,接待人員需要迅速將訪客引導至會客室進行交流洽談。如果這兩個區域相隔較遠,不僅會浪費訪客和接待人員的時間,還會給訪客留下不好的印象,影響公司的形象。再比如,辦公區和資料室,員工在工作過程中,經常需要查閱資料,將資料室設置在辦公區附近,員工可以快速獲取所需資料,提高工作效率。
而有些區域則需要頻繁穿插,如走廊、通道等,它們就像辦公空間的“血管”,連接著各個功能區域,確保人員能夠方便地在不同區域之間移動。合理規劃這些穿插區域的路徑和距離至關重要。如果走廊過于狹窄或曲折,就會造成人員擁堵,影響通行效率。例如,在一些老舊的辦公樓中,走廊設計不合理,寬度不足,在上下班高峰期或人員集中活動時,經常會出現擁堵的情況,給員工帶來很大的不便。因此,在設計走廊、通道等穿插區域時,要充分考慮人員流量和行走習慣,保證其寬度適中、路徑簡潔,使人員能夠順暢地通行。可以根據辦公區域的布局和人員流動方向,設計直線型或環形的走廊,減少拐角和不必要的轉折,提高通行效率。
辦公室裝修中的動線設計,絕非微不足道的細節,而是關乎辦公效率、員工體驗以及企業形象的關鍵環節。它就像是辦公空間的“隱形脈絡”,看似無形,卻在每一個日常工作的瞬間發揮著巨大的作用。合理的動線設計,不僅能讓員工在辦公室內的行動更加便捷高效,減少時間和精力的浪費,還能營造出一個舒適、和諧的辦公環境,提升員工的工作滿意度和幸福感。
當你下次踏入辦公室,不妨留意一下腳下的動線,感受它是否順暢自然。如果你正準備裝修或改造辦公室,一定要將動線設計納入重要考量,與專業的設計師充分溝通,結合公司的業務特點、人員結構和文化氛圍,精心規劃每一條行動路線。讓我們一起重視辦公室裝修中的動線設計,為打造一個高效、舒適、充滿活力的辦公空間而努力,讓每一位員工都能在優質的辦公環境中釋放出更大的潛能,為企業的發展注入源源不斷的動力。




掃一掃關注官方微信
0755-28710017